< Home Models / Cedar Creek
Cedar Creek
Work, play, and live at home. Call for build price.
2,307 SF ︱ 3-5 Bed ︱ 3 Bath ︱ 2-3 Car ︱ 2 Story
Designed to grow in
Room to spare —>
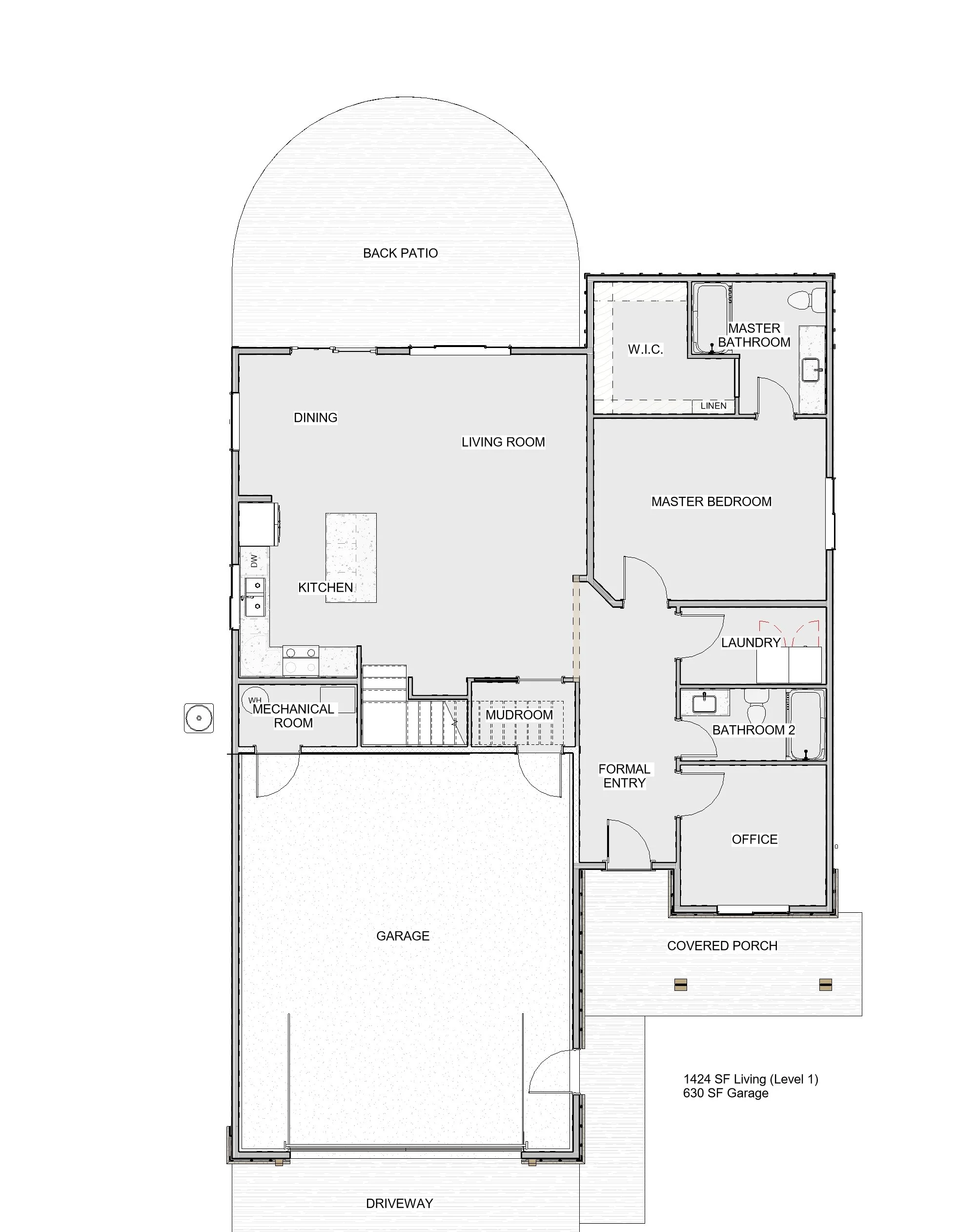
The Cedar Creek Plan offers plenty of family space, from the office, recreation room, three big bedrooms upstairs, and an open kitchen, living, and dining room. The massive master walk-in closet and oversized master bedroom give the owners a comfy place to retreat. The option to cover the big back patio provides a perfect backyard living space. And the large two car garage (optional 3rd) provides plenty of space for your garage activities.
Click to enlarge
Not quite right?
You’ve got options!
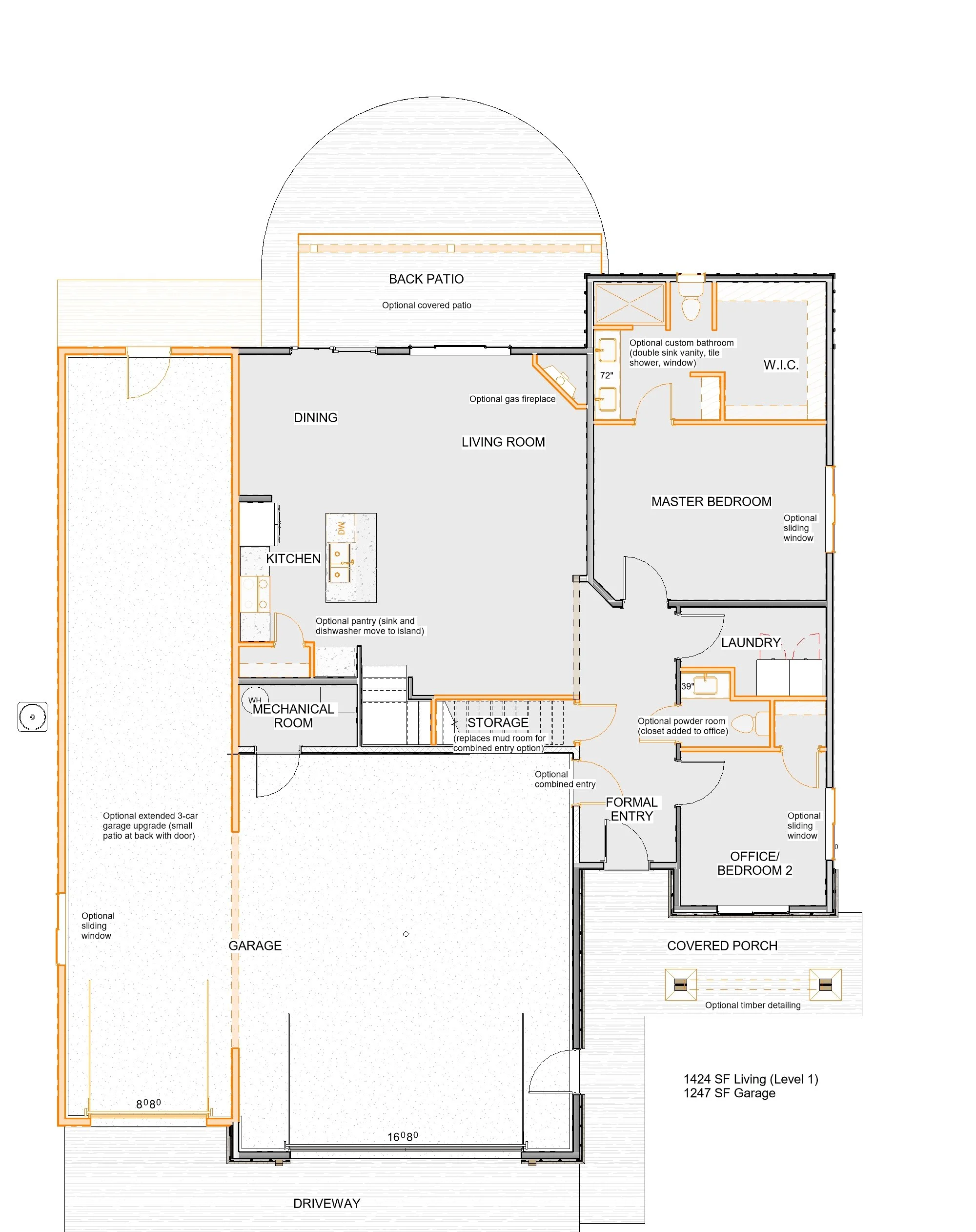
Common requests are compiled in our standard Home Plan Upgrades. Take a few seconds to check out some ideas to make your StoneMill home even better. Ask about our Home Plan Options Dashboard to see more!
Click to enlarge
The Cedar Creek is available in these communities:
-

Riverstone Park II
BRAND NEW COMMUNITY!
Sheridan, WY
Home builds from $300k’s - $800k’s
Enjoy an out-of-town feel while still close to town with easy interstate access. Look out at the Bighorns and vast quiet agriculture lands neighboring a future elementary school and Doubleday Sports Complex.
-

StoneRidge Meadows
Quick Starts + (0) Quick Move-In Available
Ranchester, WY
Home builds from $300k’s - $800k’s
A gorgeous family-oriented neighborhood of single family and attached dwellings. Situated beside an elementary school and close to the Bighorn Mountains!
Reach out to learn more.
Let us know how we can help - we’re excited to assist with any questions or comments. You can also call/text Swayne anytime: (307) 461-0987.