< Home Models / Amsden
Amsden
From $369,900*
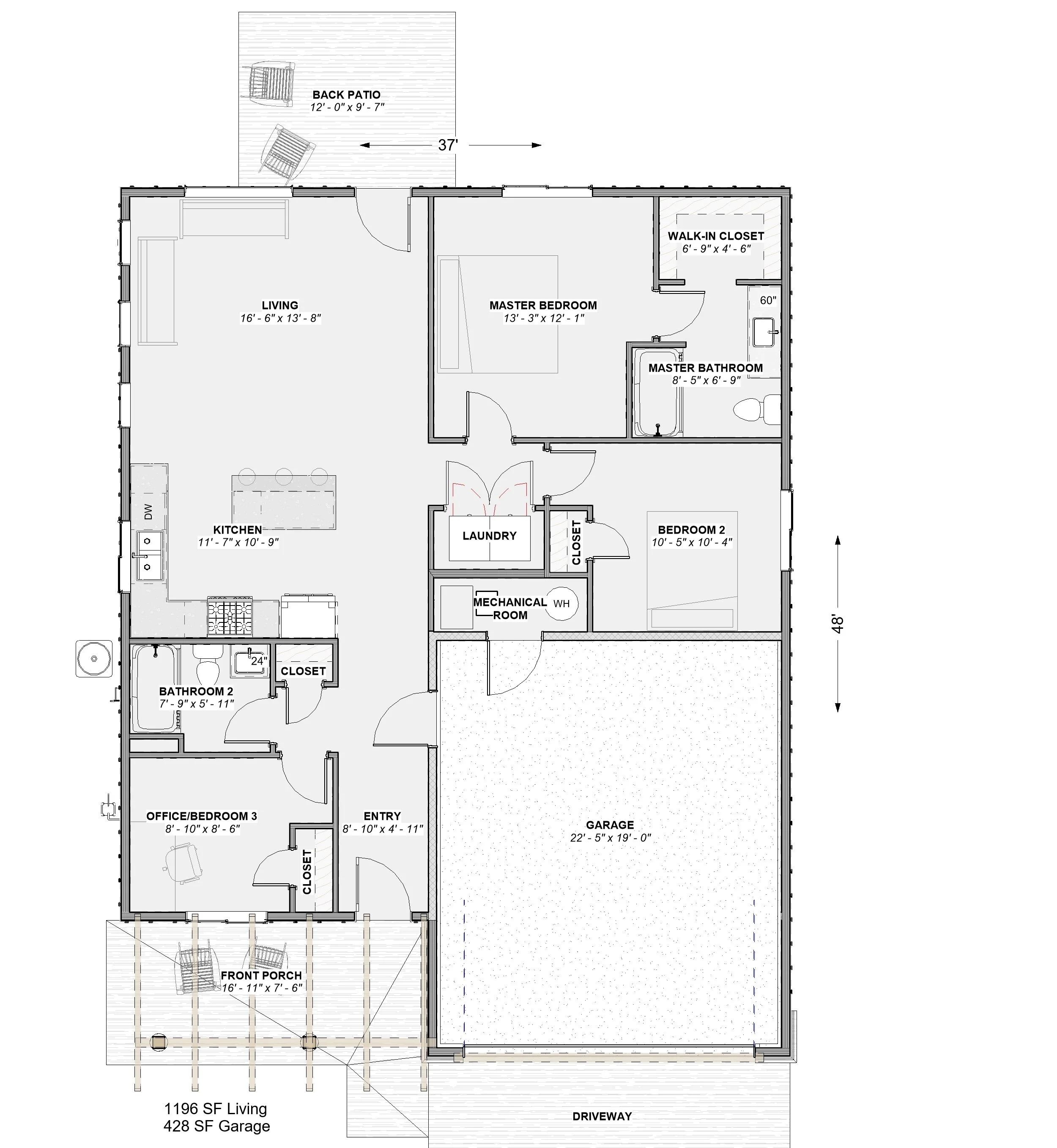
1,196 sqft ︱2 bed ︱2 bath ︱1 office︱2 car︱1 story
*Price includes lot, some lots have additional premiums. Base price home build shown here.
Elevation options
Easy does it
Click to enlarge
Designed to be simple, efficient, and effective, this home plan maximizes liveability in a modest footprint. The result is easy, accessible living in a quality home of 1196 sqft.
Recently Built Model
This recently completed Amsden Model in Ranchester Wyoming highlights a refined western curb appeal with sturdy materials.
Not quite right?
Try upgrading!
Click to enlarge
Common requests are compiled in our standard Home Plan Upgrades. Take a few seconds to check out some ideas that make your StoneMill home even better.
The Amsden is available in these communities:
-

Riverstone Park II
BRAND NEW COMMUNITY!
Sheridan, WY
Home builds from $300k’s - $800k’s
Enjoy an out-of-town feel while still close to town with easy interstate access. Look out at the Bighorns and vast quiet agriculture lands neighboring a future elementary school and Doubleday Sports Complex.
-

StoneRidge Meadows
Quick Starts + (0) Quick Move-In Available
Ranchester, WY
Home builds from $300k’s - $800k’s
A gorgeous family-oriented neighborhood of single family and attached dwellings. Situated beside an elementary school and close to the Bighorn Mountains!
Reach out to learn more.
Let us know how we can help - we’re excited to assist with any questions or comments. You can also call/text Swayne anytime: (307) 461-0987.